Регистрация Вход

Тележка для ручной тали приводная GCL TOR 5т 9м

Артикул: 10459
Грузоподъёмность, кг 5000
Высота подъёма, м 9
Двутавровая балка, мм 116-170
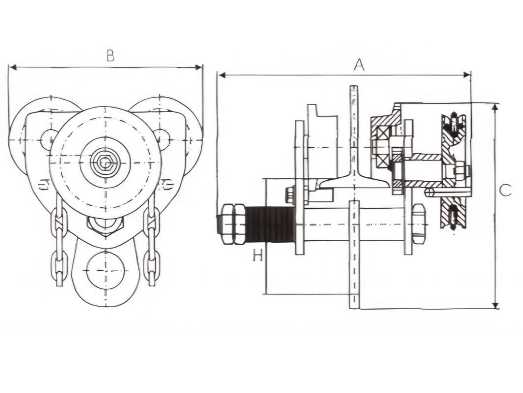
Габариты AxBxC, мм 402x327x393
Минимальный радиус закругления, м 1.4
Совместимость HSC/HSZ/ТРШС
Тип тележки Приводная
Вес, кг 40
Цена: 14 500 руб.
Выберите количество
Грузоподъёмность, кг 5000
Высота подъёма, м 9
Двутавровая балка, мм 116-170
Габариты AxBxC, мм 402x327x393
Минимальный радиус закругления, м 1.4
Совместимость HSC/HSZ/ТРШС
Тип тележки Приводная
Вес, кг 40
Бренд TOR
Страна Россия

Тележка для ручной тали приводная GCL TOR 5т 9м используется там, где нет электричества. Управляется с помощью ручной тяги цепи. Подходит для работы в помещениях и на улице при температуре от -20 до +40 °С. При выборе тележки учитывайте максимальную грузоподъемность, высоту подъема и допустимую балку двутавра (размеры указаны в характеристиках). Тележки с механизмом передвижения (приводные) позволяют перемещать груз вдоль двутавровой балки.

Работайте с грузоподъемным оборудованием осторожно и строго соблюдайте правила безопасности. Перед использованием проверяйте состояние механизма, после — очищайте от влаги и грязи. Раз в год проводите полное техническое обслуживание. Не перегружайте оборудование. После ремонта или техобслуживания проверьте тележку с небольшим грузом. Чтобы улучшить сцепление с балкой, не красьте и не покрывайте двутавр.

Купить тележку приводную можно в компании «АлтайСкладМастер». Наша компания сотрудничает напрямую с производителем, гарантируя своим клиентам лучшее качество всего товара. Работаем более 13 лет, обеспечиваем оборудованием многие компании Алтайского края и России. Осуществляем доставку по всей территории России. Доставка до транспортной компании производится бесплатно, сотрудничаем практически со всеми ТК.